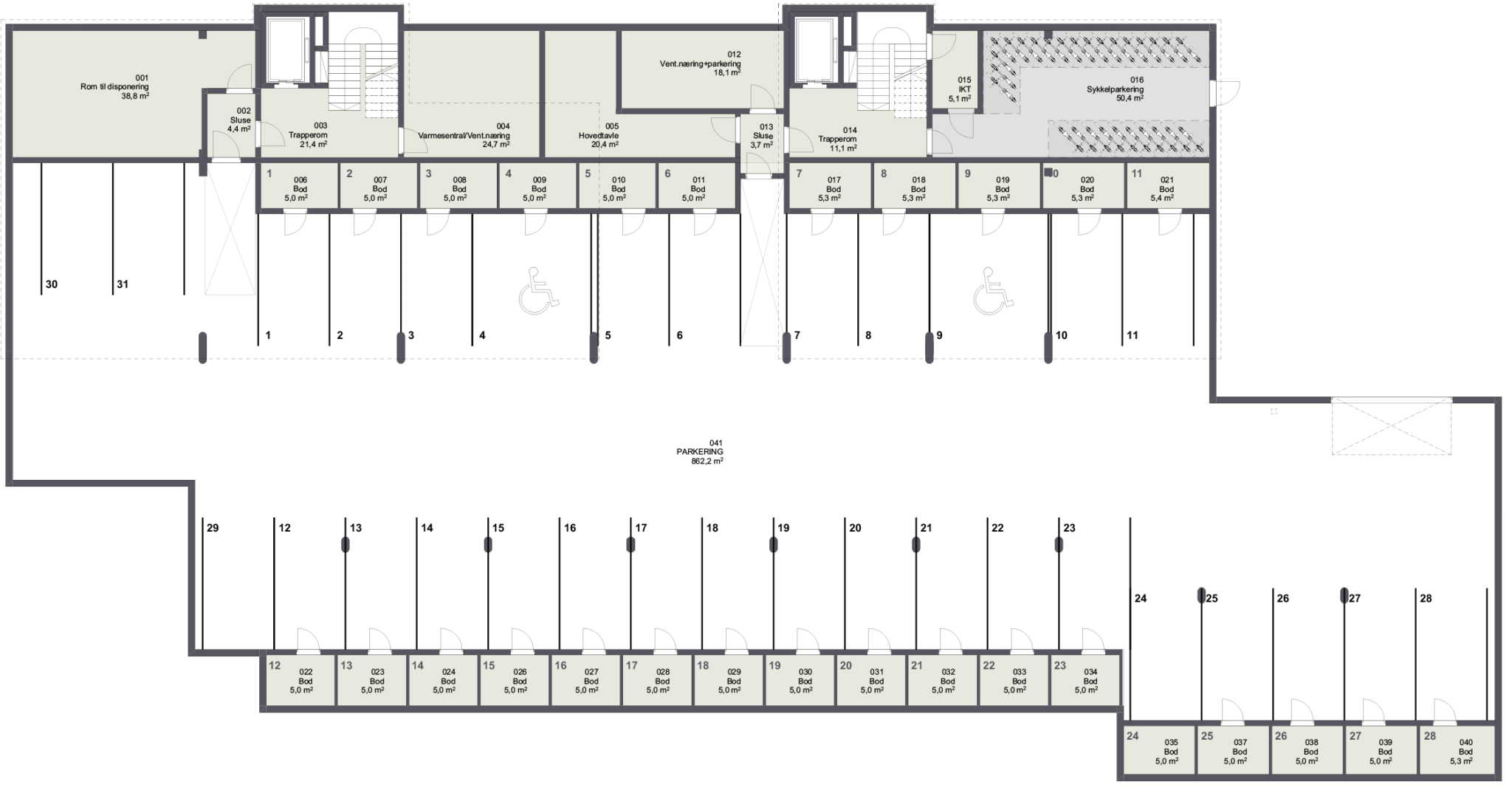
31 parkeringsplasser, hvorav 2 HC-plasser.
28 boder, samt sykkelparkering.


Synes du leilighetene på Linnestad ser spennende ut?
Få løpende oppdateringer og informasjon rundt salgsstart.
Meld deg som interessert i skjemaet under, eller kontakt megler.
