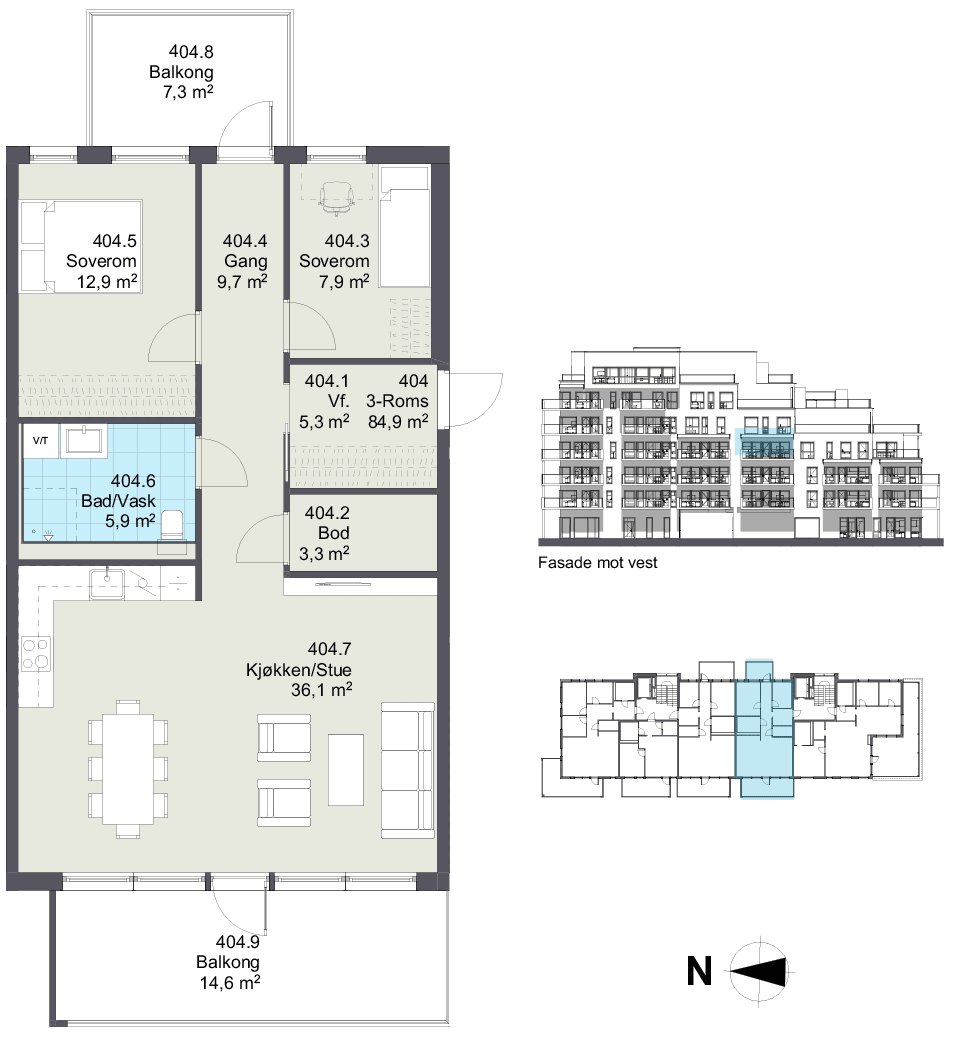
Flott gjennomgående 3-roms i 4.etasje.
Hele 84.9m2 med to romslige balkonger.


Synes du leilighetene på Linnestad ser spennende ut?
Få løpende oppdateringer og informasjon rundt salgsstart.
Meld deg som interessert i skjemaet under, eller kontakt megler.
