Linnestad logo

Leilighet 501

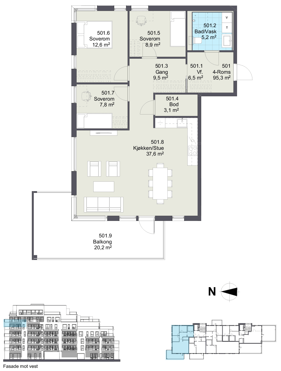
Flott 4-roms i 5.etasje.
Hele 95.3 m2 med vestvendt balkong.

Kr 6 700 000,- + omk
Tilbake til boligvelgeren
Plantegning av leilighet
Stasjonsveien
Pris
Kr 6 700 000,-
Pris inkludert omkostninger
Kr 6 732 545,-
Felleskostnader
Kr 4 768,-
Bruksareal
95.3 m2
Primærrom
91.8 m2
Antall rom
4
Etasje
5
Balkong / terrasse
20.2 m2
Annet
Avstand til kollektivtransport
80m
Avstand til butikk
190m
Avstand til barneskole
1.4 km
Avstand til barnehage
1.7 km
Plantegning av leilighet
Last ned salgsoppgave Kontakt selger Se flere leiligheter i 5.etasje

Meld interesse

Synes du leilighetene på Linnestad ser spennende ut? 
Få løpende oppdateringer og informasjon rundt salgsstart. 
Meld deg som interessert i skjemaet under, eller kontakt megler.

    Vegard Gran-Andersen

    Eiendomsmegler/ Leder Nybygg Romerike
    +47 930 40 891 Vegard.Gran-Andersen@krogsveen.no