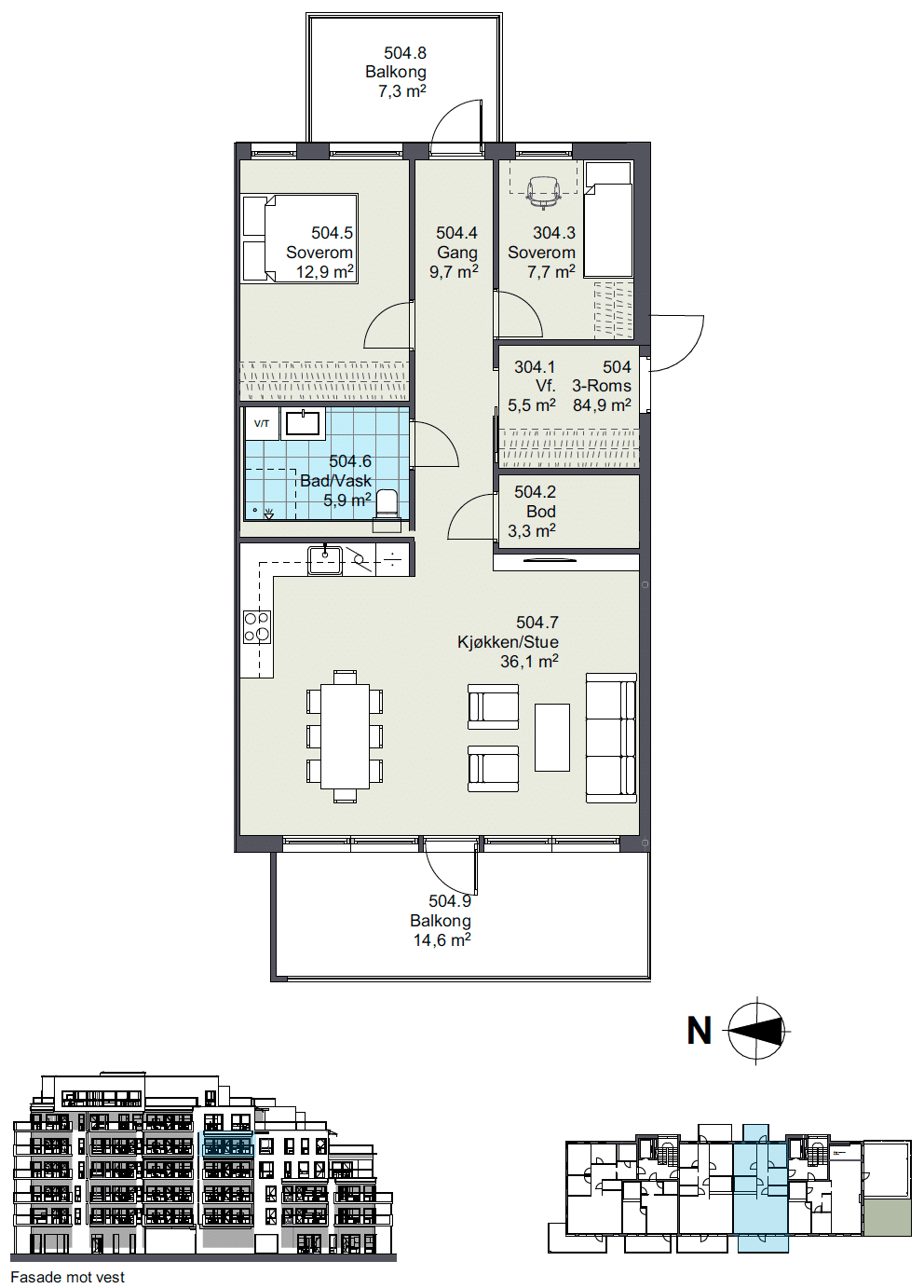
Flott gjennomgående 3-roms i 5.etasje.
Hele 84,9 m2 med romslig balkong.


Synes du leilighetene på Linnestad ser spennende ut?
Få løpende oppdateringer og informasjon rundt salgsstart.
Meld deg som interessert i skjemaet under, eller kontakt megler.
