Linnestad logo

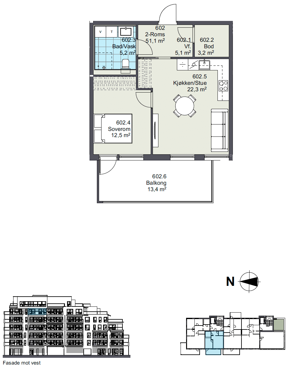
Leilighet 602

Flott 2-roms i 6.etasje.
51.1 m2 med vestvendt balkong.

Solgt
Tilbake til boligvelgeren
Plantegning av leilighet
Stasjonsveien
Pris
Solgt
Pris inkludert omkostninger
Solgt
Felleskostnader
Solgt
Bruksareal
51.1 m2
Primærrom
51.1 m2
Antall rom
2
Etasje
6
Balkong / terrasse
13.4 m2
Annet
Avstand til kollektivtransport
80m
Avstand til butikk
190m
Avstand til barneskole
1.4 km
Avstand til barnehage
1.7 km
Plantegning av leilighet
Last ned salgsoppgave Kontakt selger Se flere leiligheter i 6.etasje

Meld interesse

Synes du leilighetene på Linnestad ser spennende ut? 
Få løpende oppdateringer og informasjon rundt salgsstart. 
Meld deg som interessert i skjemaet under, eller kontakt megler.

    Vegard Gran-Andersen

    Eiendomsmegler/ Leder Nybygg Romerike
    +47 930 40 891 Vegard.Gran-Andersen@krogsveen.no